Spatiu birouri***2 etaje//300 mp//Imobil NOU**Central
\ 850.000EUR +TVA
Spatiu birouri***2 etaje//300 mp//Imobil NOU**Central
nr identificare: 1129325
Vezi harta
MADDAX Luxury Properties va propune spre vanzare un spatiu pentru birouri modern situat intr-o zona centrala din capitala, avand in proximitate strada M. Eminescu, str. Stefan cel mare, str. Viitorului. Locatia ofera acces facil la mijloace de transport in comun, statii RATB, conexiune rapida cu Piata Romana, zona Floreasca, respectiv zona Obor.
Cladirea este noua si respecta reglementarile de integrare urbanistica, avand o arhitectura moderna.
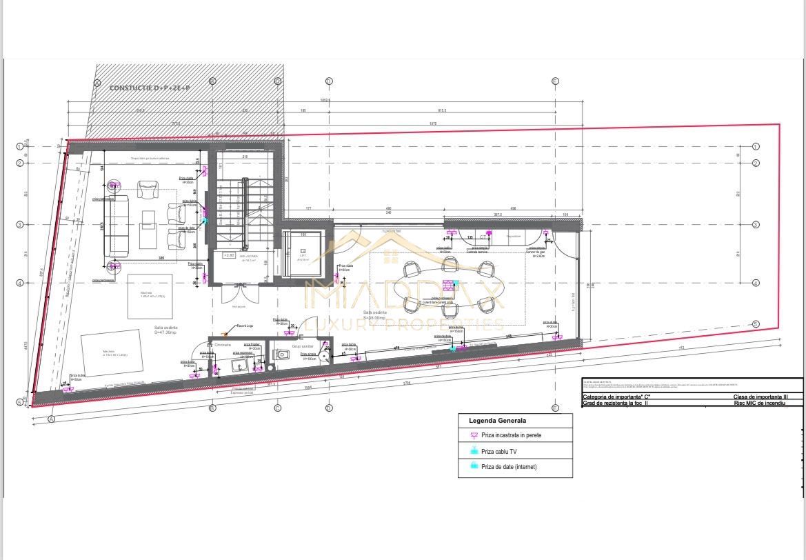
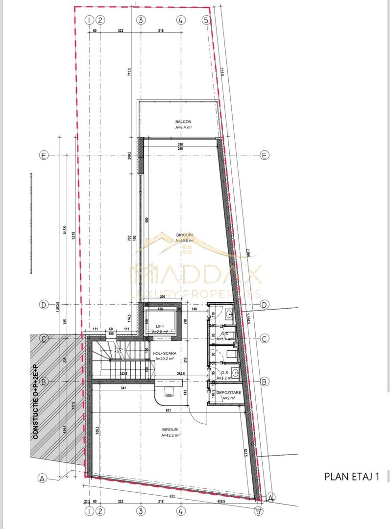
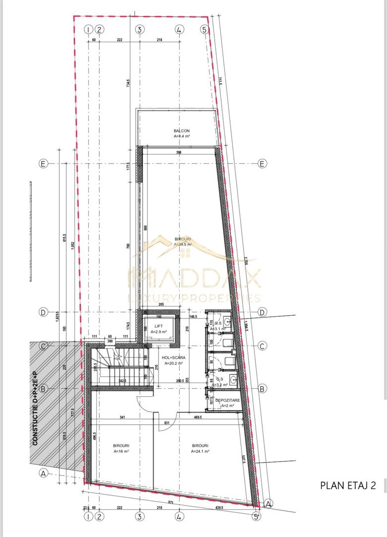
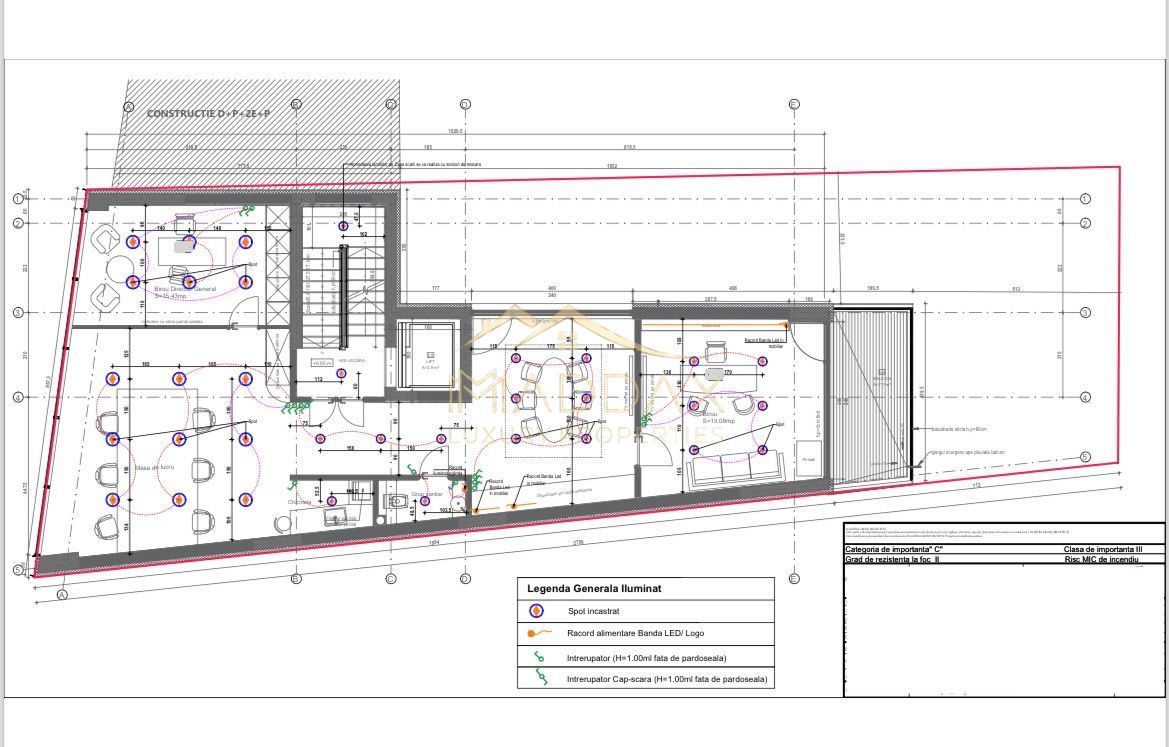
Spatiul cu suprafata totala de 300 mp este dispus pe 2 niveluri: etaj 1 (110 mp) si etaj 2 (110 mp), existand intabulare si contorizare separata. Interiorul este compartimentat eficient, permitand flexibilitate maxima in amenajare. Este compus din: birouri individuale, sali de sedinta, chicineta si grup sanitar pe fiecare etaj si ofera iesire pe terasa circulara a imobilului, de 98 mp, precum si pe o terasa verde de 22,3 mp.
Dotari: sistem de climatizare, retea IT structurata,
Accesul se face direct din strada, la parter urmand a fi amenajat un spatiu comercial.
Spatiul beneficiaza de toate utilitatile (curent trifazic, apa, canalizare, internet) si dispune de 3 locuri de parcare incluse in pret.
Datorita pozitionarii excelente, spatul ofera acces facil la toate zonele de interes ale capitalei.
Pentru mai multe detalii suntem aici pentru dumneavoastra,
Echipa Maddax
Suprafata utila: 220MP
Suprafata construita: 300MP
Nr. bai: 2
Etaj: 1
An constructie: 2024
