2 CAMERE || 2 BAI || BUCATARIE SEPARATA || VIRGILIU
\ 235.000EUR +TVA
2 CAMERE || 2 BAI || BUCATARIE SEPARATA || VIRGILIU
nr identificare: 1128725
Vezi harta
Virgiliu Residence este un boutique rezidențial cu 30 de unități de 2, 3 și 4 camere, din categoria premium în ceea ce privește arhitectura, soluțiile tehnice, design-ul și finisajele de interior, acesta fiind dotat cu circuite electrice pregătite pentru încărcarea autovehiculelor de acest tip. Proiectul este pre-certificat #greenhomes, astfel că încă de la începutul dezvoltării, acesta a fost proiectat să asigure eficiență energetică viitorilor proprietari.
În această notă, ne face plăcere să transmitem faptul că proiectul a fost nominalizat la Anuala de Arhitectură, Secțiunea Arhitectura locuințelor colective.
Construcția este finalizată, termenul de livrare fiind estimat pentru luna decembrie 2025. Antreprenorul General care s-a ocupat de construcție se numește CNO Tehno Construct, iar firma de arhitectură ADN Birou de Arhitectură.
Parcarea subterană conține 20 de locuri de parcare, dintre care au mai rămas disponibile 6, iar prețul acestora este 30.000 EUR + TVA. Cea exterioară conține 10 locuri de parcare disponibile, dintre care sunt disponibile 7, iar prețul acestora este de 20.000 EUR + TVA.
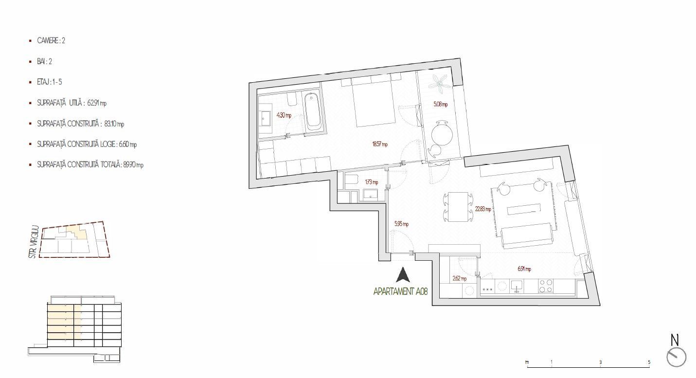
Apartamentul propus în cadrul acestui listing este compus din 2 camere, având suprafață utilă totală de 68.18mp și dispune de următoarele caracteristici:
- suprafață utilă 63.01 mp + 1 terasa de 5.08 mp
- compartimentare semidecomandata în care zona de zi e bine delimitata de zona de noapte
- o camere de depozitare sau pentru masina de spalat/uscator
- etajul 2/6 (este disponibil si la etajul 1, 3 sau 5)
- bucătărie separata
- 1 baie completa si 1 grup sanitar de serviciu
- vedere pe spate
La momentul actual, avansul standard minim este de 50%, iar restul sumei se achită la livrarea propriu-zisă.
Va asteptam la vizionarea acestui superb complex rezidential, care in scurt timp poate deveni caminul dvs.
Suprafata utila: 63.1MP
Suprafata construita: 89.7MP
Nr. camere: 2
Nr. dormitoare: 1
Nr. bucatarii: 1
Nr. bai: 2
Etaj: 2
Compartimentat: semidecomandat
An constructie: 2023

