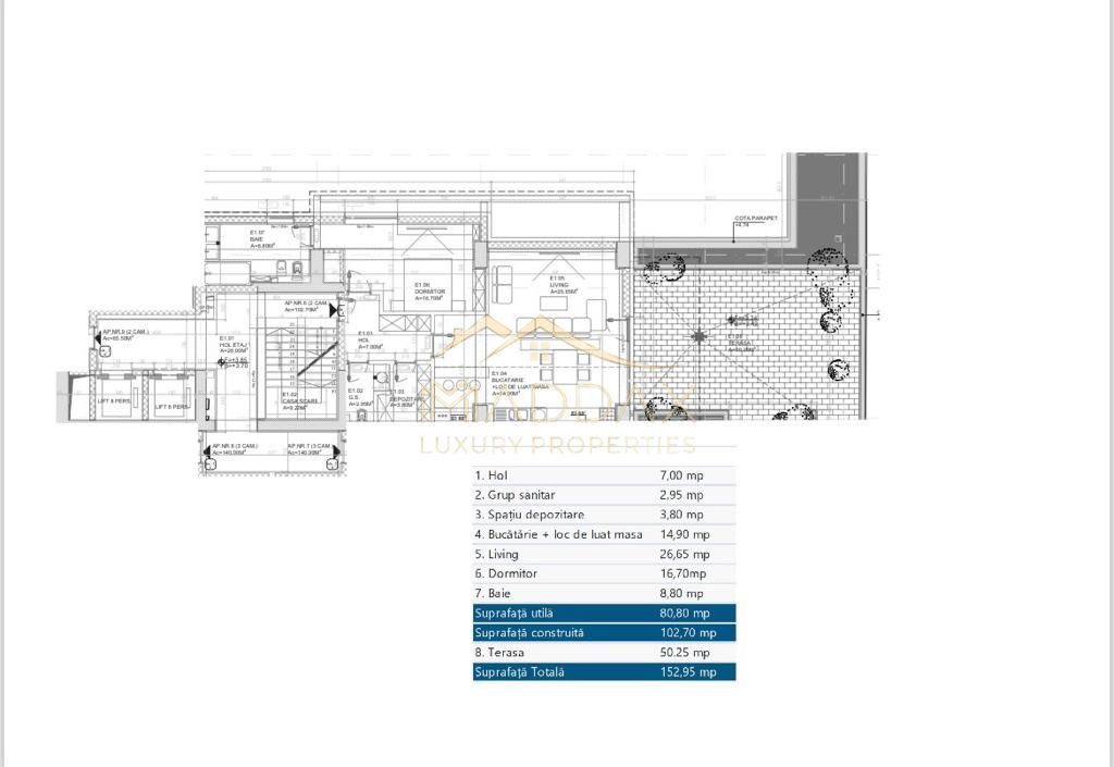
Apartament 2 camere Floreasca***102.7 mp//terasa 50 mp// Parcul Verdi
\ 390.000EUR +TVA
Apartament 2 camere Floreasca***102.7 mp//terasa 50 mp// Parcul Verdi
nr identificare: 1128764
Vezi harta
MADDAX Luxury Properties va ofera oportunitatea de a deveni proprietarii unui apartament superb, aflat intr-un ansamblu rezidential elegant, din zona exclusivista a capitalei, Floreasca, cu panorama superba catre parcul Verdi.
Proiectul se distinge printr-o interpretare proprie, abordand un stil inovativ, unic, fiind executat cu materiale premium, durabile si finisaje de cea mai buna calitate: zidarie rezistenta de tip Porotherm, Wienerberger, fatada ventilata tip Equitone si tip Formica., structura de rezistenta caramida si beton, ziduri exterioare caramida, compartimentarea intre apartamente: caramida, izolatie fonica, izolatie termica exterioara: vata bazaltica polistiren.
Apartamentul este expresia elegantei la superlativ, punand la dispozitie un living luminos cu zona de dining si deschidere la terasa generoasa de 50 mp, bucatarie open space, 1 dormitor + dressing room, 2 bai complet mobilate si utilate.
Compartimentarea excelenta a spatiului interior si suprafetele vitrate care ofera privelisti spectaculoase catre Parcul Verdi, asigura confort si un stil de viata rafinat.
Apartamentul este prevazut cu:
* sistem de climatizare tip LG VR-F
* incalzire in pardoseala tip Tece
* corpuri de incalzire Vogel & Noot
* parchet triplustratificat Bauwerk, fabricat in Elvetia
* placi ceramice MARAZZI, lastre de dimensiuni floor to ceiling 320 X 160 mm
* cada baie cu hidromasaj tip Belform Ludica
* sanitare Villeroy&Boch
* tamplarie aluminiu - Alumil
* videointerfon
Facilitati ansamblu:
- Parcare subterana (contracost)
- Acces securizat
- Lift
- Parc
- Supraveghere video
Datorita locatiei excelente, ansamblul beneficiaza de acces facil la zonele de interes din Nordul Bucurestiului: Promenada Mall, Metrou Aurel Vlaicu, Lacul Floresca, restaurantele gourmet si piata Floreasca, zona de business Dimitrie Pompei/Floreasca.
Pentru mai multe detalii, suntem aici pentru tine,
Echipa Maddax
Suprafata utila: 80.8MP
Suprafata construita: 102.7MP
Nr. camere: 2
Nr. dormitoare: 1
Nr. bucatarii: 1
Nr. bai: 2
Etaj: 1
Compartimentat: decomandat

