| Dorobanti 2 camere | DE VANZARE |
Vă propunem spre vânzare un apartament de 2 camere decomandat, situat într-una dintre cele mai dorite zone ale Capitalei – Calea Dorobanți, Sector 1.
Localizare excelentă
Imobilul se află într-o zonă ultracentrală, cu acces rapid către Piața Dorobanți, Ștefan cel Mare, Floreasca și Aviatorilor. În proximitate se regăsesc restaurante, cafenele, supermarketuri, instituții de învățământ, clinici și mijloace de transport în comun.
Caracteristici apartament
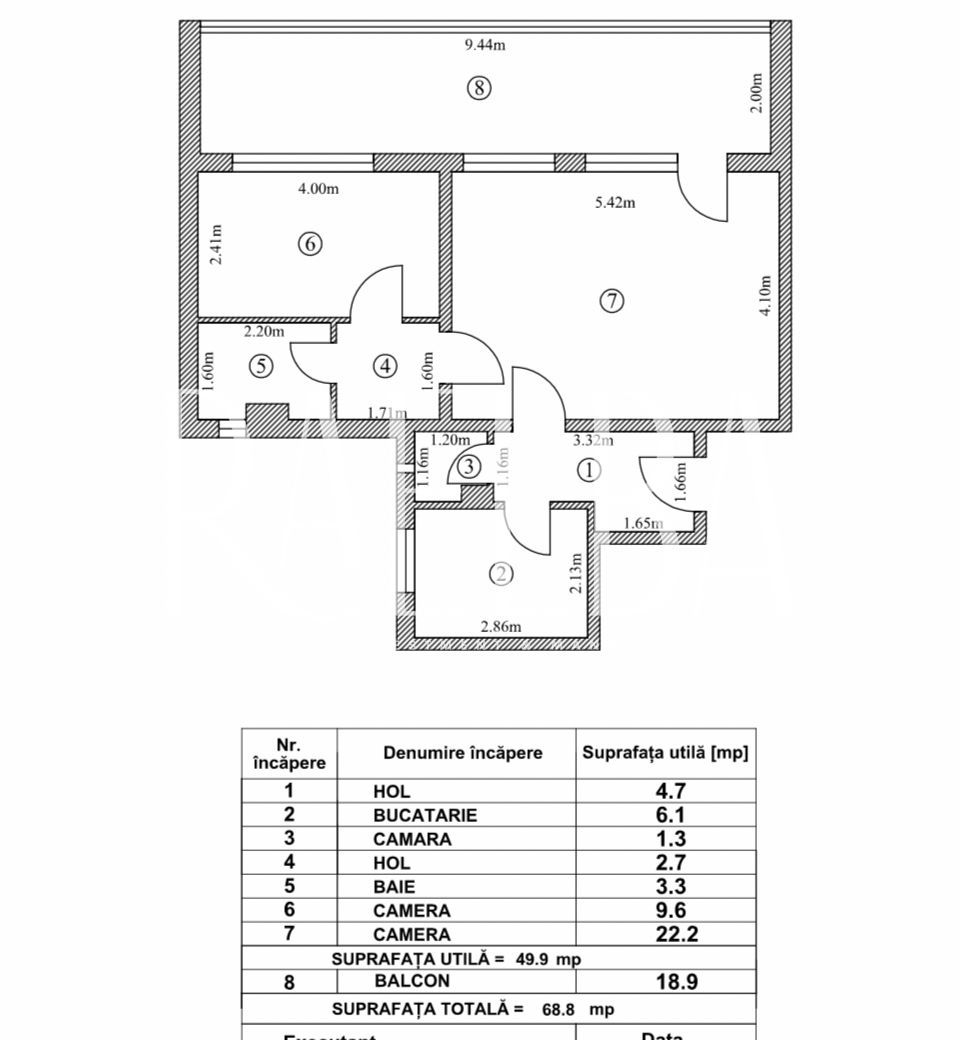
• Suprafață totală: 68,8 mp
• Suprafață utilă: 49,9 mp
• Compartimentare: decomandat
• 2 camere spațioase, bucătărie separată, baie cu geam, cămară și balcon generos (aprox. 11 mp)
• Etaj intermediar într-un bloc solid, reabilitat termic
Stare
Apartamentul necesită renovare / reîmprospătare, ceea ce oferă noilor proprietari posibilitatea de a-l amenaja după propriul gust și stil.
Avantaje
• Poziție excelentă – una dintre cele mai căutate zone rezidențiale din București
• Compartimentare practică, fără pierderi de spațiu
• Balcon mare, ideal pentru relaxare sau spațiu de depozitare suplimentar
• Investiție sigură: potrivit atât pentru locuință proprie, cât și pentru închiriere (zona Dorobanți are cerere ridicată constantă)
Suprafata utila: 68.8MP
Suprafata construita: 82.56MP
Nr. camere: 2
Nr. dormitoare: 1
Nr. bucatarii: 1
Nr. bai: 1
Etaj: 7
Compartimentat: decomandat
An constructie: 1974

